Halter für die Sonnenschute

Hier handelt es sich um den 2. Teil des Halters, der an die Sonnenschute selbst angebracht wird.
| Dateityp | JPG |
| Dateigröße | 27.8 KB |
| Downloads total | 464 |
| Downloads heute | 0 |
| Datei aufgenommen | 2009-02-08 13:35:49 |
Meinungen zum Thema
Was ist Ihre Meinung zu diesem Artikel? Bisher wurde hierzu noch keine Meinung abgegeben - aber Sie haben doch bestimmt eine!
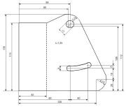
Halter für die Sonnenschute

In den meisten Fällen ist der originale Halter für die Sonnenschuten einfach wegoxydiert. Außerdem gibt es einige unterschiedliche Halterungen. Hier nun eine bemaßte Zeichnung einer Lösung für den Halter.
Anmerkung: an der gestrichelten Linie ist das Blech 90° abzukanten, dabei dran denken, dass eine rechte und eine linke Halterung dabei herauskommen muss.
| Dateityp | JPG |
| Dateigröße | 41 KB |
| Downloads total | 462 |
| Downloads heute | 0 |
| Datei aufgenommen | 2009-02-07 20:41:56 |
Meinungen zum Thema
Was ist Ihre Meinung zu diesem Artikel? Bisher wurde hierzu noch keine Meinung abgegeben - aber Sie haben doch bestimmt eine!
Informationsblatt Auto und Steuern vom Bund der Steuerzahler in Sachsen e.V.
| Dateityp | |
| Dateigröße | 93.2 KB |
| Downloads total | 602 |
| Downloads heute | 0 |
| Datei aufgenommen | 1998-01-01 15:00:00 |
Meinungen zum Thema
Was ist Ihre Meinung zu diesem Artikel? Bisher wurde hierzu noch keine Meinung abgegeben - aber Sie haben doch bestimmt eine!
Freeware - Linklistenverwaltung in PHP ohne SQL-Anbindung
| Dateityp | ZIP |
| Dateigröße | 5.9 KB |
| Downloads total | 486 |
| Downloads heute | 0 |
| Datei aufgenommen | 1998-01-01 15:00:00 |
Meinungen zum Thema
Was ist Ihre Meinung zu diesem Artikel? Bisher wurde hierzu noch keine Meinung abgegeben - aber Sie haben doch bestimmt eine!
WinAmp-Skin
| Dateityp | ZIP |
| Dateigröße | 0.2 MB |
| Downloads total | 767 |
| Downloads heute | 0 |
| Datei aufgenommen | 1998-01-01 15:00:00 |
Meinungen zum Thema
Was ist Ihre Meinung zu diesem Artikel? Bisher wurde hierzu noch keine Meinung abgegeben - aber Sie haben doch bestimmt eine!






